Обяви 0 За нас Контакти
Продава ПРОМ. ПОМЕЩЕНИЕ
град Русе, Широк център
306 600 €
599 657.48 лв.

(1 188 €, 2 323.53 лв./m2)
Цената е с включено ДДС
История на цената
Коригирана в 7:41 на 14 април, 2026 год.
Обявата е посетена 880 пъти.
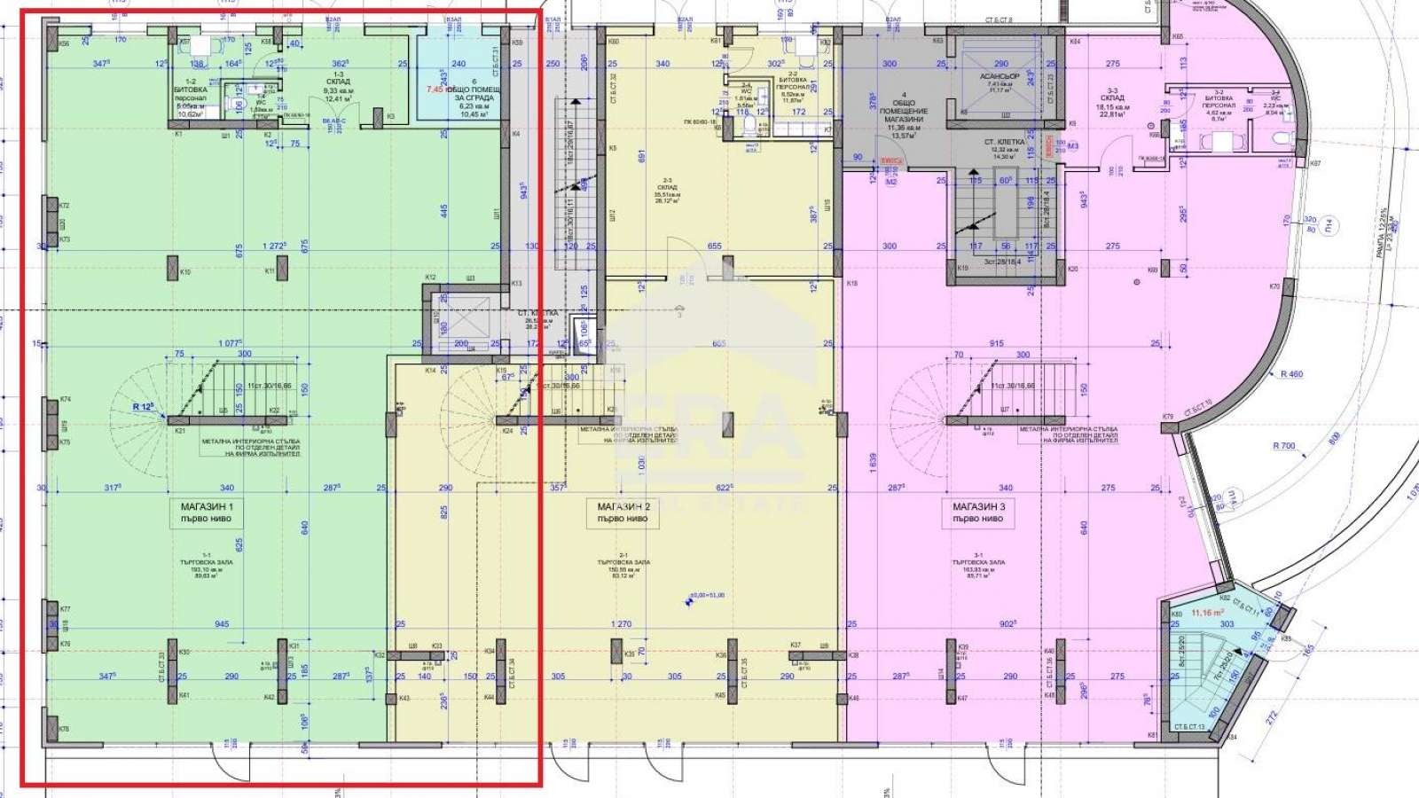
Площ:
258 m2
Етаж:
Партер от 6
Газ:
НЕ
ТEЦ:
НЕ
Строителство:
Тухла, Не е въведен в експлоатация

Описание на имота:


ЕРА Имоти Надежда има честта да представи на Вашето внимание магазин в процес на изграждане, който гарантира висока видимост и потенциал за успех. Разположен на първи етаж в нова, модерна сграда със смесено предназначение в един от най-търсените райони на Русе, този имот е създаден за Вашия бъдещ просперитет.

Ключови Предимства на Обекта
Помещенията са с внушителна площ и предлагат функционално разпределение, което лесно може да се адаптира към различни бизнес нужди:
* Шоурум или Просторна Търговска Зала: Идеална за представяне на продукти или организиране на работно пространство.
* Отделни Помещения: Включва стая за отдих/офис за персонала, санитарен възел и складово помещение всичко необходимо за безпроблемна работа.
* Универсалност: Локацията и площта го правят перфектен за спортна зала, фитнес център, голям спортен магазин, модерен банков клон или представителен корпоративен офис.
Престижна Локация с Гарантиран Поток от Клиенти
Районът е стратегически той съчетава спокойна жилищна атмосфера (гарантираща постоянен човекопоток) с изключителна достъпност.
* Удобство: В непосредствена близост до имота са разположени ключови обекти: детска градина, училище, аптеки, големи хранителни вериги и бензиностанция.
* Централна Близост: Само 15 минути пешеходно разстояние от идеалния център на града перфектната комбинация от спокойствие и лесен достъп до градския живот.
Иновативно Строителство и Минимални Разходи
Сградата се изгражда според най-високите стандарти за енергийна ефективност, което е пряка гаранция за минимални експлоатационни разходи в бъдеще. Инвестирайте в качество, което пести пари:
* Премиум Екстериор: Окачената, вентилируема фасада с HPL панели осигурява отлична изолация и модерен облик.
* Висок Клас Дограма: PVC дограма с троен стъклопакет и шумоизолация на стените за максимален комфорт и тишина.
* Лукс и Сигурност: Луксозен асансьор, включително и ТОВОРЕН, РАМПА, модерни общи части, домофонна система и висок клас блиндирани входни врати.
Сградата е в процес на строителство с планирано завършване през 2026 г.
* Гъвкаво Плащане: Разработена е гъвкава схема на плащане, обвързана с етапите на строителство, което облекчава финансовата тежест.
* Допълнителни Бонуси: Ексклузивна възможност за закупуване на гаражи на преференциални цени ключов актив в градска среда!
* Завършеност: Помещенията ще бъдат предадени по БДС (шпакловка, замазка, ВиК на тапа).

Времето Е Пари!
Това е имот с изключителен потенциал за възвръщаемост на инвестицията. Тъй като комплексът разполага с ограничен брой свободни търговски площи, Ви препоръчваме да действате бързо!
Обадете се СЕГА на посочения телефон, за да запазите своя час за консултация и да получите пълната техническа информация. Вашият успешен бизнес започва тук!
089 996 6688

Покупката на имота може да бъде финансирана при най-добри условия. Може да разчитате на CREDITERA- услугата ни е напълно безплатна!

Оферта 3801839
Особености
Тухла
За контакт:
0899966688
Агенция:
ЕРА ИМОТИ НАДЕЖДА
0899966688
ЕРА ИМОТИ НАДЕЖДА logo
Медал за прослужено време
В imot.bg от 2019 г.
nyagolova.imot.bg
Адрес:
област Русе, гр. Русе, ул.'Духовно Възраждане' 21
ИЗПРАТИ ЗАПИТВАНЕ
ИЗПРАТИ ЗАПИТВАНЕТО

Продава ПРОМ. ПОМЕЩЕНИЕ
град Русе, Широк център
Обява: 1p176008860679432

306 600 €
599 657.48 лв.
История на цената
(1 188 €, 2 323.53 лв./m2)

Цената е с включено ДДС
ЗАПАЗИ ОБЯВАТА

Местоположение: град Русе, Широк център

Допълнителни данни за имотите в района и сравнение с други райони

Покажи

Период

и 4 месеца

* Средните цени са определени чрез медианна стойност